Company
Company
  • Обо мне
  • Проекты
  • Услуги
  • Контакты
БУЛЬВАР ЭЙНШТЕЙНА, 3
р.
р.
ПОВАРСКАЯ, 26
р.
р.
ИВАНА ФРАНКО, 4
р.
р.
ШЕРЕМЕТЬЕВСКАЯ, 35
р.
р.
ФОНВИЗИНА, 18
р.
р.
КРУПСКОЙ, 6к2
р.
р.
    БУЛЬВАР ЭЙНШТЕЙНА, 3
    р.
    р.

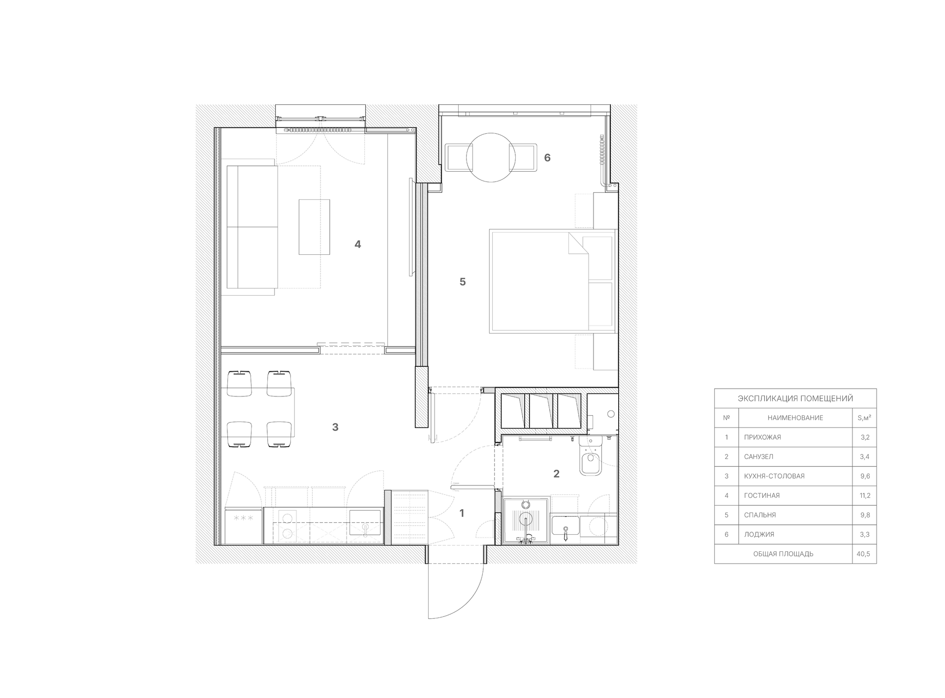
    Объект: 1-комнатная квартира
    Площадь: 40,5 кв.м
    Локация: МО, рабочий поселок Новоивановское, ЖК «Инновация»
    Год: 2022
    Статус: реализован



    Аскетичный интерьер для молодого холостяка — функционально и без лишних деталей. По просьбе заказчика кухонная зона отделена от гостиной сдвижной дверью, а стена гостиной со стороны соседей дополнительно звукоизолирована. Спальня объединена с лоджией, что добавило пространства и света.

    Для практичности уборки в отделке использованы простые в уходе материалы: в спальне уложена модульная виниловая плитка, в остальных зонах — керамогранит, который частично заходит на стены на высоту 60 см, заменяя плинтусы. Завершает эту отделку декоративный гипсовый фриз, визуально объединяющий пространство. Керамогранит используется не только на полу, но и на фартуке кухни, в прихожей и санузле — это ключевой материал проекта.

    Для хранения в гостиной выбрана открытая стеллажная система, которая служит и подставкой для телевизора, и функциональным решением для организации вещей — всё хранится в корзинах и контейнерах. Такой подход поддерживает общий минимализм и порядок.
    ПОВАРСКАЯ, 26
    р.
    р.

    Объект: 2-комнатная квартира
    Площадь: 50 кв.м
    Локация: Москва, ул. Поварская, д.26
    Год: 2021
    Статус: реализован


    Квартира находится в историческом центре Москвы, в доходном доме И.С. Баскакова, построенном в 1912–1914 годах. Это здание примечательно тем, что здесь в 1917–1918 годах жил писатель Иван Бунин перед эмиграцией.

    Квартира впечатляет высокими потолками (3,8 метра), эркерным окном и собственным балконом. После демонтажа советской планировки, которая делила пространство на множество маленьких комнат, нужно было создать новый дизайн-проект — квартира предназначалась для сдачи в аренду. Это определяло бюджет и стиль: простые строительные решения, недорогая готовая мебель и минимум индивидуальной заказной мебели — только по необходимости.

    Вместе с заказчиком было принято решение частично опустить потолок в зоне прихожей — там организовали антресоль. Прихожую от спальни отделили стеной из платяных шкафов, а сама спальня осталась с высоким потолком. От остального пространства спальню и антресоль отделяет светопрозрачная перегородка из сотового поликарбоната. Под ней установлен карниз с плотной шторой, чтобы при необходимости изолировать спальню от гостиной.

    Старую кирпичную стену очистили от штукатурки и покрасили в белый цвет — чтобы подчеркнуть её фактуру. В эркере разместили рабочее место, объединив стол с акриловым подоконником. На кухне в верхних шкафах за перфорированными фасадами скрыт кондиционер. А сантехнический шкаф и соседние зоны хранения объединены общими глянцевыми фасадами глубокого зелёного цвета. Их гладкая поверхность контрастирует с фактурной штукатуркой потолка и верхней части стен.
    ИВАНА ФРАНКО, 4
    р.
    р.

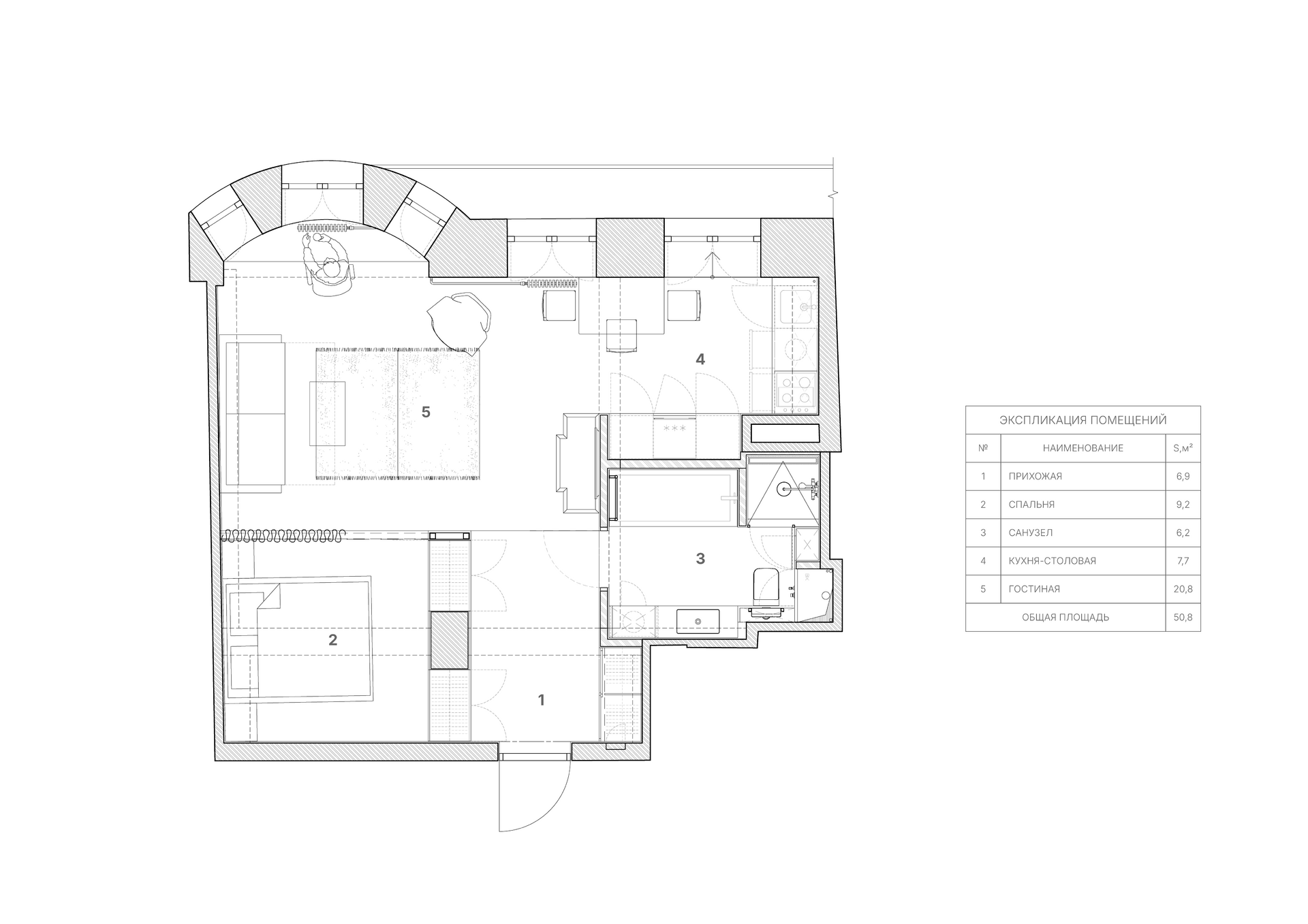
    Объект: 2-комнатная квартира
    Площадь: 48 кв.м
    Локация: Москва, ЖК Mainstreet
    Год: 2024
    Статус: реализован


    В этом проекте заказчиками стала молодая супружеская пара. Квартира находится в жилом комплексе бизнес-класса и относится к категории апартаментов, поэтому здесь не нужно строго соблюдать строительные и санитарные нормы. Это дало больше свободы при планировке — её удалось максимально адаптировать под нужды владельцев.

    Одной из непростых задач было разместить на ограниченной площади два смежных санузла: один с душевой кабиной, другой с ванной. Из-за этого кухня приобрела угловую двухчастную форму, рабочие зоны которой разделены сдвижной дверью — входом в ванную.

    Особым элементом интерьера стала стенка за кроватью, выполненная из молочного сотового поликарбоната. За ней — встроенная по периметру подсветка, которую можно настраивать по яркости и цвету в зависимости от настроения. Когда свет выключен, стенка почти сливается с окружающим интерьером и выглядит нейтрально.
    ШЕРЕМЕТЬЕВСКАЯ, 35
    р.
    р.

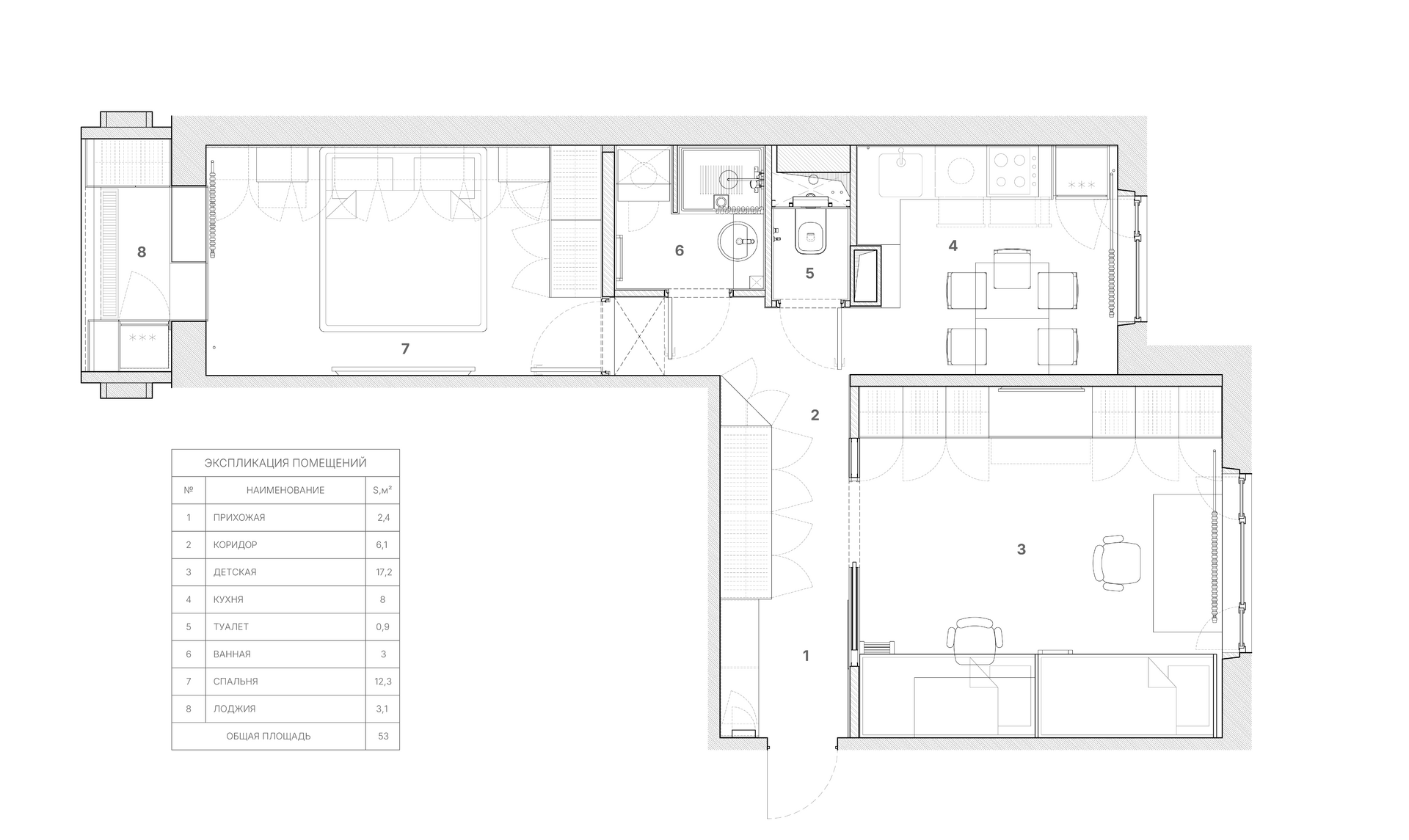
    Объект: 2-комнатная квартира,
    Площадь: 53 кв.м
    Локация: Москва, ул. Шереметьевская, д.35
    Год: 2022
    Статус: реализован



    Заказчик обратился с просьбой разработать дизайн-проект квартиры в панельном доме серии П-46. Нужно было полностью обновить интерьер и избавиться от всего, что напоминало о прошлом оформлении.

    Основная задача заключалась в грамотной планировке: у семьи трое детей, и одну из двух комнат следовало отдать под детскую, предусмотрев в ней места для сна и учёбы. Вторая комната стала спальней для родителей — уютным и спокойным пространством, где они могли бы отдыхать от повседневной суеты.

    Квартира имеет вытянутую форму, с длинным коридором и узкими помещениями, что не совсем соответствует современным представлениям о комфорте. По этой причине, а также из-за большого количества необходимых мест хранения, было принято решение визуально зонировать интерьер с помощью цвета и фактур. Детскую оформили в морозно-голубых тонах, спальню — в пыльно-розовом, а фрагменты коридора и кухни — в мягком оттенке авокадо. Стена за кроватью в спальне оформлена с использованием рельефных гипсовых панелей, сантехнический шкаф и санузел приобрели шпонированные дубом фасады, а в санузле использована мозаичная плитка в цветовом сочетании, которое применяется советскими архитекторами на фасаде этого дома. На утеплённой лоджии, выполненной из серебристых фасадов под алюминий, организовано дополнительное хранение — с платяными шкафами и встроенной морозильной камерой.
    ФОНВИЗИНА, 18
    р.
    р.

    Объект: 4-комнатная квартира
    Площадь: 106 кв.м
    Локация: Москва, ЖК Фонвизинский
    Год: 2024
    Статус: реализован
    Команда: VG + Полина Логвинова



    Семейная пара, родители троих детей и хозяева двух пушистых кошек, с которыми я уже работал ранее, обратилась с просьбой разработать проект новой квартиры в жилом комплексе. Задача была предусмотреть отдельную комнату для каждого ребёнка, создать просторную спальню для родителей — не только для сна, но и для отдыха в течение дня.

    Квартира делится на две основные зоны.
    Детская часть включает три детские комнаты, внутренний коридор и санузел.
    Общая зона состоит из спальни родителей, их личного санузла, кухни-столовой и постирочной.

    Из-за ограниченной площади отдельной гостиной не предусмотрено. Роль зоны отдыха выполняет кухня-столовая с присоединённой лоджией — здесь вся семья может проводить время вместе.

    Чтобы избежать «глухого» вида при входе, напротив входной двери сделано декоративное решение: волнистые гипсовые панели, напоминающие занавес, а над ними — лайтбокс, имитирующий дневной свет из спальни родителей.

    Цветовое оформление выбрано минималистичное: светлые стены и пол, мебель в оттенке светлого дуба. Вместо материалов, легко царапающихся, по всей квартире уложен светлый керамогранит. Стены покрыты прочной износостойкой краской. Потолки в основном подвесные со встроенным освещением, а в общих зонах оставили очищенный бетон, высветленный с помощью лессировки.
    КРУПСКОЙ, 6к2
    р.
    р.

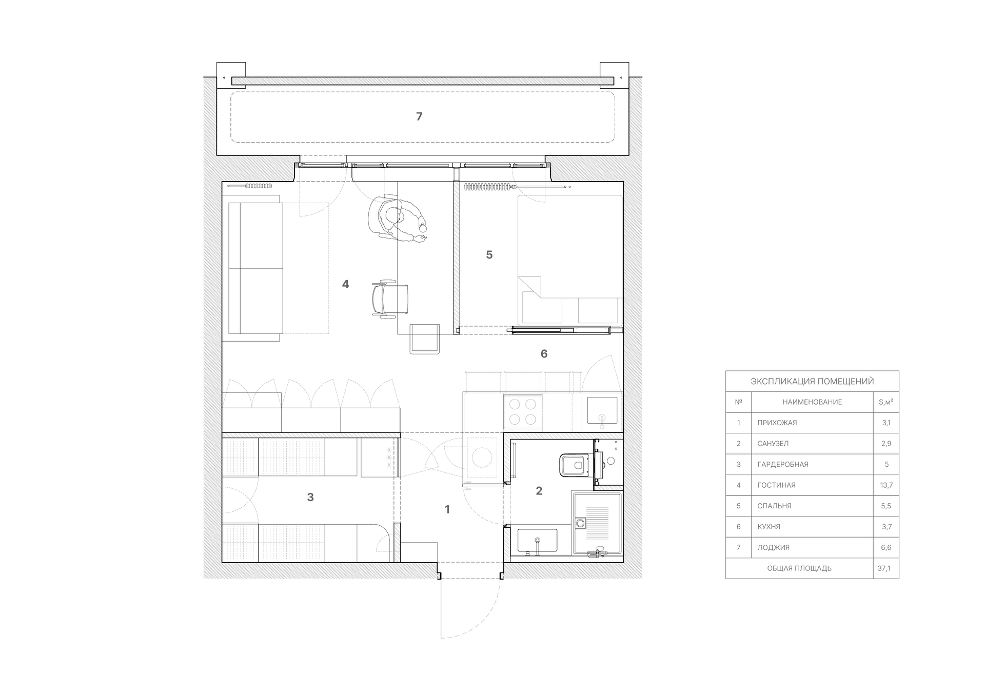
    Объект: 1-комнатная квартира
    Площадь: 37,1 кв.м
    Локация: Москва, ул. Крупской, д.6к2
    Год: 2019
    Статус: реализован



    Это мой первый проект интерьера — квартира, в которой я вырос и жил до 20 лет.
    Планировка типового панельного дома серии II-68 изначально не подходила под новые задачи. Кухня была слишком большой, а гостиная/спальня одновременно служила и гардеробной, и столовой, и даже танцполом. Санузел был тесным из-за чугунной ванны, которая занимала много места.

    Поэтому я решил полностью демонтировать перегородки и заново выстроить часть стен — в рамках норм перепланировки. На кухне появилась новая каркасная стена со сдвижной дверью — она отделяет зону готовки от спальни. В местах, где стены спальни примыкают к внешним стенам, вставлены стеклоблоки: они пропускают дневной свет из спальни на кухню, а вечером работают как ночник — если в спальне свет выключен, а в гостиной ещё горит.

    От гостиной отделена часть пространства под гардеробную, с зеркалом в конце коридора — это визуально расширяет пространство. В самой гостиной появился длинный стол: с одной стороны — рабочее место у окна, с другой — обеденная зона. Когда приходят гости, стол можно передвинуть в центр комнаты — и за ним легко размещаются 8–10 человек. Болгарская стенка “Иглика” обрела вторую жизнь: лишилась декоративных молдингов и получила латунные ручки. В санузле вместо ванны появился душевой поддон. Это сделало помещение просторнее и позволило удобно разместить сантехнику.

    ТАРАСА ШЕВЧЕНКО, 25
    р.
    р.
    3-й АВТОЗАВОДСКИЙ ПРОЕЗД, 3
    р.
    р.
    ТАРАСА ШЕВЧЕНКО, 25
    р.
    р.

    Объект: офис, коммерческое помещение
    Площадь: 80 кв.м
    Локация: Москва, набережная Тараса Шевченко, д.25
    Год: 2022
    Статус: реализован
    Команда: VG + Максим Толмачёв



    Это экспресс-проект офиса, который мы реализовали всего за 3,5 месяца — от первой встречи с заказчиком до сдачи. Задача была адаптировать пространство под нового арендатора. Требовалось организовать пост охраны у входа и гардероб, установить стойку ресепшн в узком проходе, где пересекаются потоки сотрудников, обустроить переговорную с зоной ожидания и оформить кабинет руководителя.

    Помещение сдавалось с отделкой в неоклассическом стиле: коричневая цветовая гамма, тяжёлые филёнчатые двери, глянцевый натяжной потолок и неровные стены. Мы решили пойти по пути контраста: добавить яркие акценты за счет краски и цветной подсветки, и применять только недорогие индустриальные материалы. Каркасы перегородок и стойка ресепшн сделаны из оцинкованного профиля Кнауф, а облицовка — из профнастила в натуральном стальном цвете.

    Единственным вмешательством в существующую отделку стало частичное удаление штукатурки с кирпичной стены в кабинете руководителя — это удалось согласовать с арендодателем.
    3-й АВТОЗАВОДСКИЙ ПРОЕЗД, 3
    р.
    р.

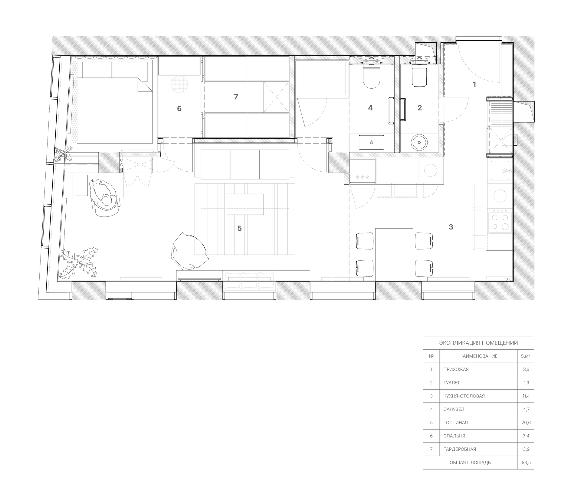
    Объект: 2-комнатная квартира
    Площадь: 53,5 кв.м
    Локация: Москва, ЖК «Клубный Дом STORY»
    Год: 2020
    Статус: реализован



    Этот проект сделан для молодого предпринимателя из строительной сферы. Благодаря его вовлеченности, конечный результат получился точно таким, как на первоначальных визуализациях. Квартира находится в жилом комплексе бизнес-класса и оформлена как апартаменты, что дало больше свободы – не нужно было строго соблюдать все строительные нормы, и планировку получилось идеально подогнать под нужды хозяина.

    Большое количество окон стало одновременно и преимуществом, и сложностью. С одной стороны, они наполнили пространство светом, с другой – ограничили варианты расстановки мебели в гостиной. Например, пришлось тщательно продумывать расположение пары диван - телевизор, чтобы вписать их между многочисленными оконными проемами.

    В отделке использовали много интересных материалов и фактур: в прихожей - рельефные гипсовые панели, на полу – керамогранит под терраццо с черной галькой и паркетная доска из ясеня в жилой зоне. На кухне сделали медный фартук и оригинальный реечный потолок, а в гостиной над диваном разместили декоративные медные панели с подсветкой. В санузле положили плитку, имитирующую каррарский мрамор, и установили матовые стеклоблоки.

    По просьбе заказчика, оставили и обыграли в интерьере железобетонные колонны и балки, просто придав им декоративный вид. Даже вентиляционные трубы над входной дверью превратили в элемент дизайна, покрасив их в серебристый металлик.
    © Vladimir Gusev plus
    • Обо мне
    • Проекты
    • Услуги
    • Контакты
    © Vladimir Gusev plus
    Наверх